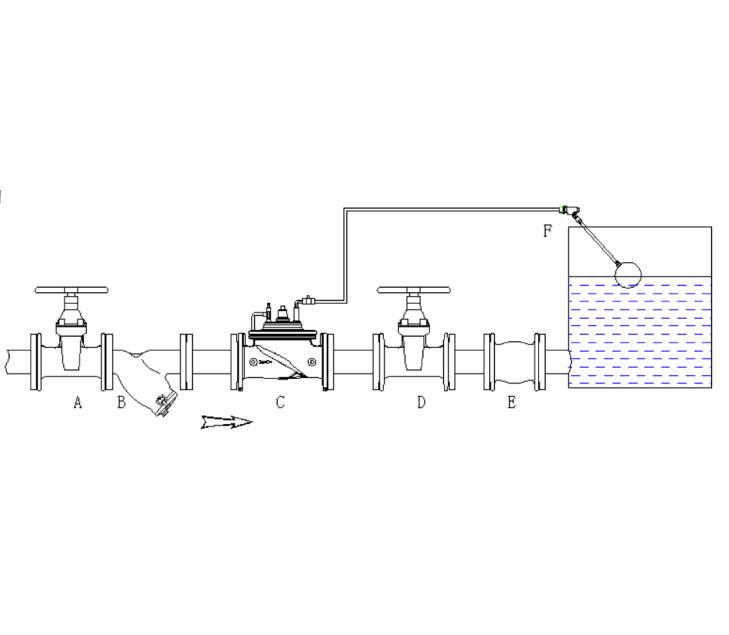
The Model 100 Float Valve is a non-modulating valve That accurately controls the liquid level in tanks. This valve is designed to open fully when the liquid level reaches a preset low point, and close drip-tight when the level reaches a preset high point. The float pilot is remotely installed inside of reservoir.
This is a hydraulically operated, diaphragm valve with the pilot Control and float mechanism mounted on the cover of the main valve.

